ReRoom

Ruang Tamu,
Minimalis
Asli
Source Image
Diunggah
Hasil(1440x768)
source
4.64%
Result Images
Result Images
Result Images

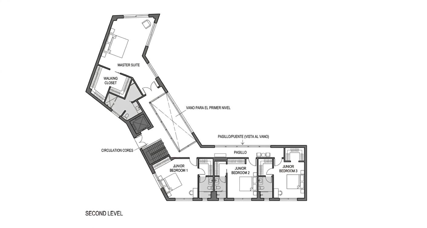
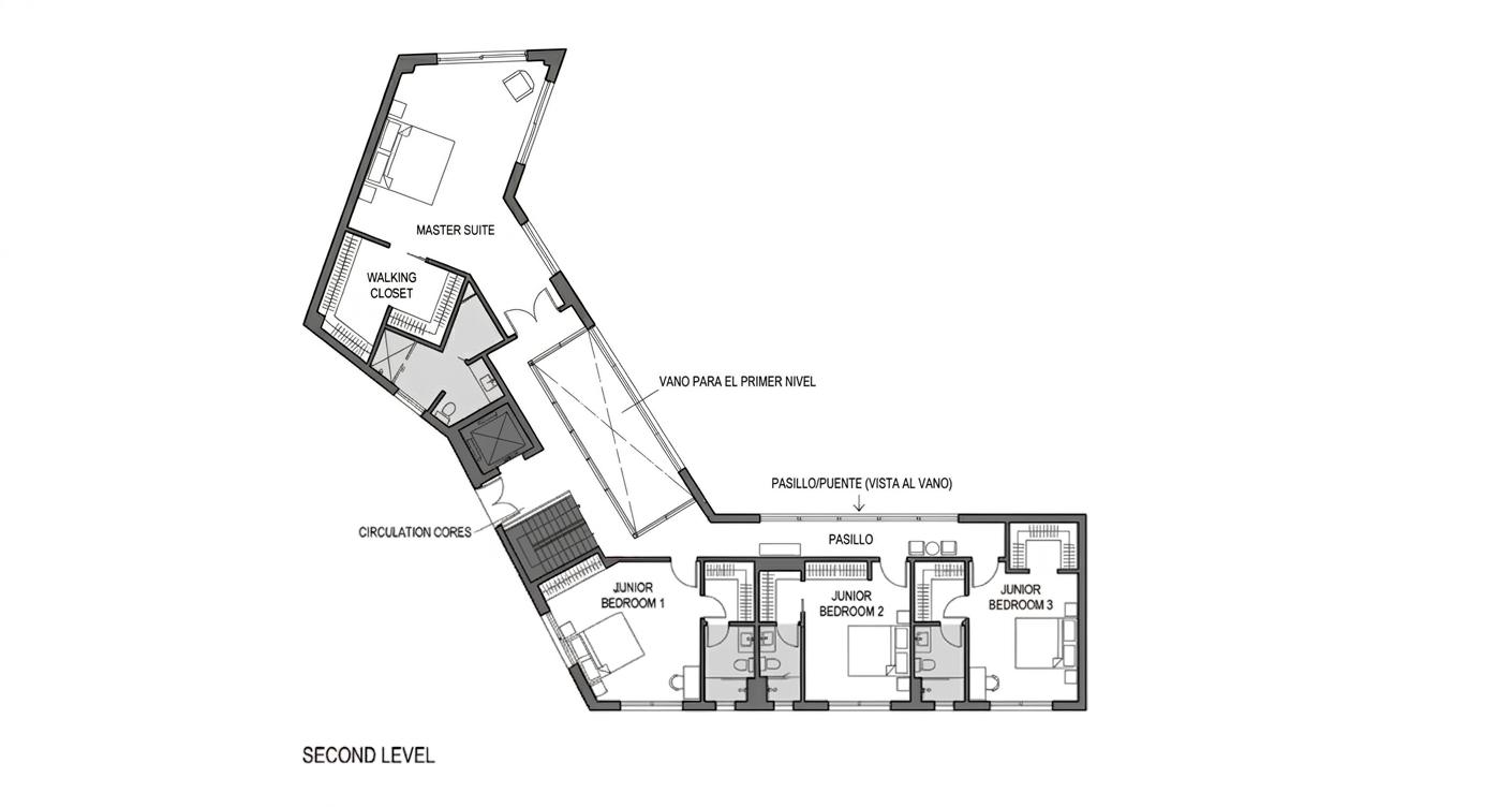
An incredibly lifelike, richly detailed, photorealistic floorplan photo of a minimalist haven, capturing the essence of a serene and uncluttered living space. The scene is illuminated by soft, natural light, creating a tranquil and elegant atmosphere, as if bathed in the gentle glow of a bright, overcast day. Captured with a wide-angle lens, emphasizing the sleek metal and wooden furniture, the photography book, and the abstract wall art, the image highlights the functional and streamlined design. Shades of white, gray, and subtle pastels dominate the palette, reflecting the minimalist aesthetic. Surfaces are perfectly clutter-free, with minimal decor, save for strategically placed indoor plants that add a touch of organic life. The composition draws the eye through the open-plan layout, revealing the Zen-inspired furnishings and the overall sense of modern simplicity. The perspective offers a clear, overhead view, showcasing the spatial relationships between different areas and conveying a feeling of airy spaciousness crucial to the minimalist intent.