Seimbang


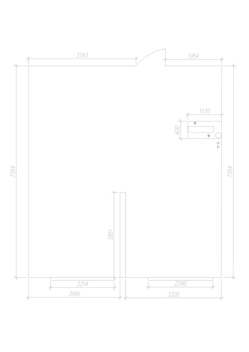
An incredibly lifelike, richly detailed, photorealistic floorplan photo of a minimalist haven, envisioned as a spacious studio kitchen and living area with a dedicated children's room, set within a well-lit interior. The scene is illuminated by the bright, diffused light of midday during a summer day, creating a clean and airy atmosphere. Captured with an architectural lens, emphasizing the clean lines and functional layout, this photograph showcases the seamless integration of distinct zones within a single open space. The main area, bathed in natural light, features the studio kitchen with contemporary cabinetry and countertops, flowing into a welcoming living space. Adjacent to this is a clearly defined children's area, suggesting a bright and playful environment. To the right of the entrance, a meticulously planned, separate bathroom and bathtub area is visible, indicated by its precise placement and compact design. A crucial element of the design, a dedicated walk-in closet, is thoughtfully integrated, providing ample storage and contributing to the overall sense of order. The composition is one of order and spaciousness, with subtle hints of the architectural structure defining the boundaries of each functional zone. The perspective is that of an overhead drone shot, offering a clear, unobstructed view of the entire layout, with a sharp focus across the entire plane, revealing every detail of the envisioned space.